Agenzia Immobiliare IL GOLFO

call 0183403141 location_on VIA AURELIA ,167 San Bartolomeo al Mare (Liguria) mail info@immobiliareilgolfo.it

Villa a San Bartolomeo al Mare

location_on San Bartolomeo al Mare (Liguria)

€ 590.000


Riferimento: 10036

Dettagli

Tipologia: Villa
Tipo contratto:
Vendita
Città: San Bartolomeo al Mare
Indirizzo:
San Bartolomeo al Mare (Liguria)
Locali: 8
Bagni: 4
Camere: 3
Superficie: 275
Anno: -

Ambienti

check Terrazzo
check Giardino
check Terreno - Mq: 2363
check Posti auto coperti
check Posti auto scoperti
check Posti moto
check Cantina
check Magazzino

Caratteristiche

check Aria condizionata
check Camino
check Doccia
check Infissi in alluminio
check Persiane
check Ripostiglio

Descrizione

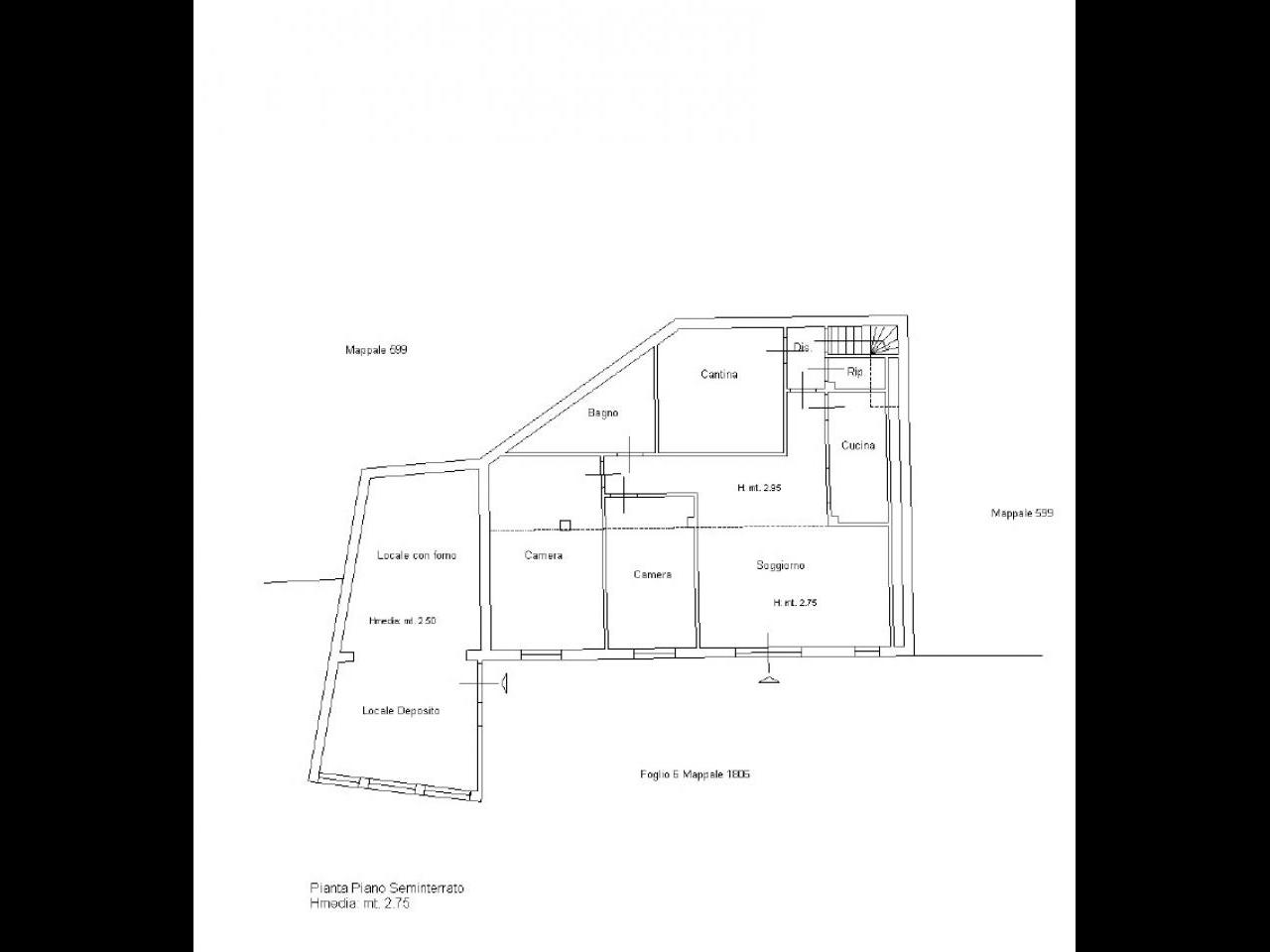
Benvenuti alla nostra splendida villa indipendente con terreno a San Bartolomeo al Mare, nella zona di San Simone. La proprietà, con riferimento 10036, è in vendita e offre un totale di 275 mq commerciali e 214 mq calpestabili, con 8 locali, 3 camere da letto e 4 bagni. L'immobile è in condizioni abitabili ed è dotato di riscaldamento autonomo a metano. La certificazione energetica è in attesa di aggiornamento. La villa si trova a soli 2.500 metri dal mare e dispone di un giardino privato, terreno circostante di 2.363 mq con alberi da frutto, magazzino e ampio spazio verde. All'interno, al piano terra, troverete un doppio salone con caminetto, cucinotto separato, camera matrimoniale con cabina armadio e bagno privato, cameretta e bagno con vasca. Al primo piano, accessibile sia internamente che esternamente, c'è un altro appartamento con soggiorno luminoso, cucina, bagno con doccia e camera da letto mansardata con bagno privato. Completa la proprietà una tavernetta, posti auto coperti e scoperti. Il prezzo richiesto è di 590.000 €. Per ulteriori informazioni, non esitate a contattarci!

Planimetrie

Localizzazione

Video

Recensioni

Scrivi la tua recensione

Voto:

STAI CERCANDO DI VENDERE CASA?

Affidaci l'incarico e ci penseremo noi.

call

CHIAMACI ORA

0183403141

L'immobile è stato aggiunto ai preferiti.
arrow_upward